Grelha de drenagem de águas pluviais dwg

_DETAIL_MODAL_GTRANSLATE_

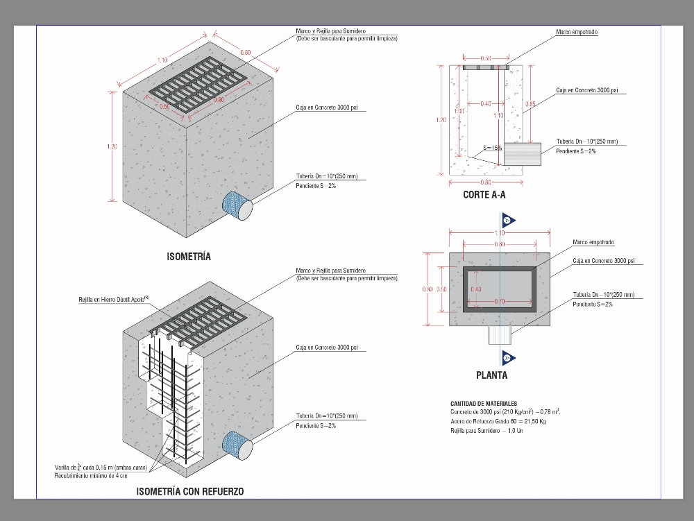
Caixa de drenagem de águas pluviais com grelha horizontal, vista em planta, perfil e elevação isométrica; com detalhe da armadura.
Confirma el mail en Facebook e intenta nuevamente.
Confirma el mail en Google e intenta nuevamente.
Sua conta se encontra inativa. Para solicitar a reativação pode contactarnos por email na direçãosoporte@bibliocad.com.